Баня Квадро-Хаус «4×4.3» три помещения

  • КХ 4Х4.3 3 ПОМ_result

749 990

Баня Квадро-Хаус «4×4,3» имеет три больших помещения и с легкостью может разместить компанию. В данной модели Вы можете организовать полноценное помывочное отделение. За счет формы баня обеспечит быстрый прогрев помещений даже зимой. Баня устанавливается бригадой сборщиков за два дня.

  • Вы можете сделать точный расчет стоимости бани и сделать заказ самостоятельно. Нажмите на каждый пункт для выбора опций.

    • Grill'D Bochky Short

      В базовой комплектации. Grill’D Bochky Short с внутренней топкой. Загрузка - 40 кг камней. Сталь повышенной прочности

    • Печь не выбрана

    • Сетка для камней L700 с камнями. В базовой комплектации бани.

    • Окно 600х600

    • Окно в парилку 300х400

    • Деревянная дверь 1640x605мм с окошком правая (петли справа)

    Теплый пол

    Для обогрева используется инфракрасная система с защитой от перегрева, обеспечивающая быстрый и равномерный нагрев. В качестве напольного покрытия применяется кварц-виниловая плитка (SPC) с текстурой натурального дерева, отличающаяся повышенной износостойкостью и эстетичным внешним видом. Для максимальной энергоэффективности монтаж выполняется на специальную теплоизолирующую подложку.
  • Напольные шкафы комплектуются столешницами требуемого размера, получаемого из целой столешницы 2400x38x600 мм (фрагменты столешниц уже включены в стоимость напольных шкафов). Смесители и мойки в комплект не входят. Стоимость вычитаемого полка вдоль стены, где будет установлена кухня, уже вычтена из стоимости кухонных модулей.
    • +
    • +
    • +
  • *Выберите комплектацию

    Reset options
  • Количество слоев внешней обработки

    Цвет внешней обработки

    Цвет торцов и наличников

Описание

Каркас
  • Еловый или кедровый профиль толщиной 42х92 мм, влажностью 10%
  • Основание под баню из поперечных лаг 50х150 мм с возможностью последующего утепления (в случае не использования проливных полов)
  • Пол из доски с возможностью замены
  • Основание под баню (деревянные ножки)
  • Внешняя обработка антисептиком в один слой (при поставке изделия в готовом виде или со сборкой на участке)

Кровля
  • Крыша из гибкой черепицы Döcke PIE или Технониколь до самого низа. Цвет коричневый

Печной узел
  • Дровяная печь Grill’D Bochky Short
  • Пожаробезопасное многослойное основание-сэндвич под печь из нержавеющей стали, минерита и базальтового картона
  • Защита от нагрева из минерита
  • Камни для печи (в подарок)

Дымоход
  • Дымоход в сборе
  • Проходной узел под дымоход из нержавеющей стали, термоизоляции, резинового уплотнителя с хомутом

Двери
  • Входная дверь деревянная 1640×605 мм с окном
  • Стеклянная тонированная дверь в парилку
  • Стеклянная тонированная дверь в моечное отделение

Парное отделение
  • Проливные полы на лагах с уклоном в сторону от печи из доски с возможностью замены
  • Четыре сливных отверстия в нижней точке, закрываемые клапанами. Отверстия между собой соединены фрезерованным в полу пазом глубиной 10 мм
  • Угловой полок из липы или осины
  • Трапик на пол из ели
  • Окно 300х400 мм
  • Светильник банный IP54
Комната отдыха/раздевалка
  • Проливные полы на лагах (возможен уклон) из доски с возможностью замены
  • Полки из липы или осины согласно схеме расположения
  • Трапик на пол из ели
  • Стол
  • Окно 600х600 мм
  • Светильник банный IP54
  • Розетка
  • Выключатель
Моечное отделение
  • Проливные полы на лагах с уклоном в сторону от печи из доски с возможностью замены
  • Два сливных отверстия в нижней точке, закрываемые клапанами. Отверстия между собой соединены фрезерованным в полу пазом глубиной 10 мм
  • Полки из липы или осины согласно схеме расположения
  • Трапик на пол из ели
  • Светильник банный IP54

Детали

Количество помещений

3

Длина козырька/крыльца

200 мм

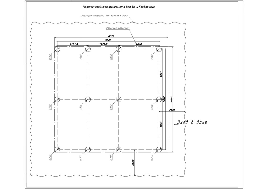
Общая длина (наружный размер)

4329 мм

Высота

2755

Ширина

4060 мм

Вес

2230 кг

Чертеж

Свайное поле